
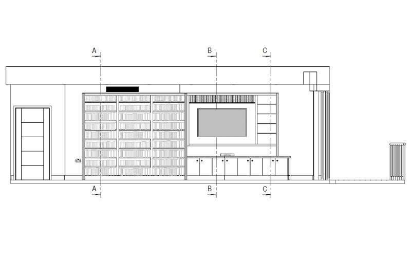
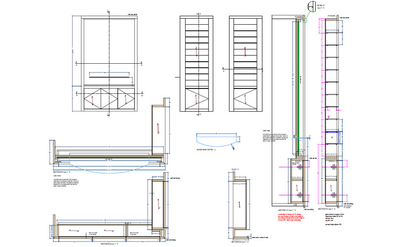
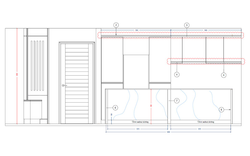
High end joinery is becoming more difficult to source due to the rarity of highly skilled craftspeople. For over thirty years, we have been engaged in hand building and creating top end furniture and bespoke cabinet and joinery installations.
We work with some of the finest cabinet makers in the country to deliver outstanding creations that are always individual and unique.
Our expertise in concept, design manufacture and delivery is renowned for its impressive outcome.

